سالن شیر دوشی
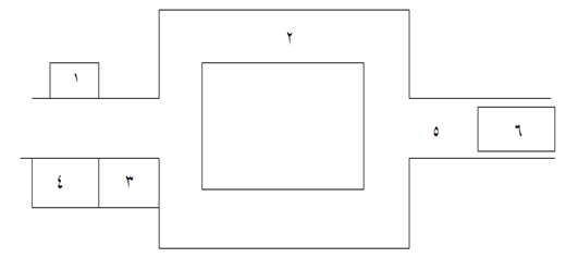
همان طور که در شکل مقابل میبینید هر سالن شیر دوشی از دو قسمت اصلی و فرعی تشکیل میشود که قسمت اصلی شامل محوطه انتظار (Holding Area) و سالن شیر دوشی(Millking Parlor) میباشد و قسمت فرعی شامل اتاق کارگران، اتاق نگهداری شیر، حمام و اتاق نگهداری ابزار و تجهیزات (Utility Room) میباشد.

محوطه انتظار(Holding Area)
قسمتی از ساختمان شیردوشی است که گاوها برای ورود به سالن در آن تجمع و نگهداری میشوند و در قسمت ورودی این محوطه معمولا یک گودال در نظر گرفته میشود که در آن مواد ضد عفونی کننده سُم ریخته میشود تا قبل از ورود گاوها به سالن شیر دوشی سُمها ضدعفونی بشوند. کف این قسمت نباید لغزنده و سُر باشد. معمولا برای هر 20 راس گاو شیری 36 متر مربع محوطه انتظار در نظر میگیرند.
1: اتاق نگهداری
2: سالن شیر دوشی
3: حمام
4: سردخانه
5: محوطه انتظار
6: گودال ضدعفونی
|
 |
تصویر شماتیک یک سالن شیر دوشی
|
سالن شیر دوشی(Millking Parlor)
سالن شیر دوشی یک واحد گاوداری بسیار اهمیت دارد و نهایت دقت در ساخت و طراحی با در نظر گرفتن همه جوانب باید صورت گیرد. چرا که نتیجه دقت در احداث سالن شیردوشی یک واحد گاوداری، کیفیت شیر تولیدی آن است بنابراین هر اندازه در این مورد دقت گردد و هزینه شود بیهوده نخواهد بود. نکاتی که باید در سالن شیر دوشی در نظر گرفته شود به قرار زیر است :
1) کف سالن و اتاق و تا ارتفاعی از دیوارهای سالن قابل شستشو و ضد عفونی باشد. کف باید به گونهای باشد که از لیز خوردن گاو جلوگیری شود و در ضمن شیب ملایمی به سمت فاضلاب داشته باشد.
2) درهای ورودی و خروجی باید توسط توریهای مخصوصی پوشانیده شود تا از ورود مگس جلوگیری شود.
3) از تهویه و نور کافی برخوردار باشد.
اتاق نگهداری شیر
اتاق نگهداری شیر باید از تهویه مناسبی برخوردار باشد. و هواکشها باید در جایی نصب شوند که بوی اصطبل و انبار خوراک دام به آن منتقل نشود. و سطوح داخلی آن قابل شستشو باشد. اتاق نگهداری شیر باید لوازم زیر را داشته باشد :
1) کولر
2) شیر سرد کن
3) آب گرم کن
4) جایگاه بیدونهای شیر (بیدون به ظرف نگهداری شیر میگویند )
5) قفسههایی برای گذاشتن وسایل ضروری و مورد نیاز شیر دوشی
6) باسکول
7) موتور برق
اندازه و ابعاد اتاق نگهداری شیر بستگی به میزان شیر تولیدی دارد. ابعاد را تقریبا چنین در نظر میگیرند.
مقدار شیر تولیدی
|
طول و عرض اتاق بر حسب متر مربع
|
از 120لیتر به پایین
|
3 در 6/3
|
از 120 لیتر تا 200لیتر
|
6/3 در 6/3
|
از 200لیتر تا 400لیتر
|
6/3 در 2/4
|
از 400لیتر به بالا
|
6/3 در 8/4
|
:: موضوعات مرتبط:
پرورش دام (گاو، گوسفند وبز)